Bungalow Project Plan With Column Footing CAD Drawing
Description
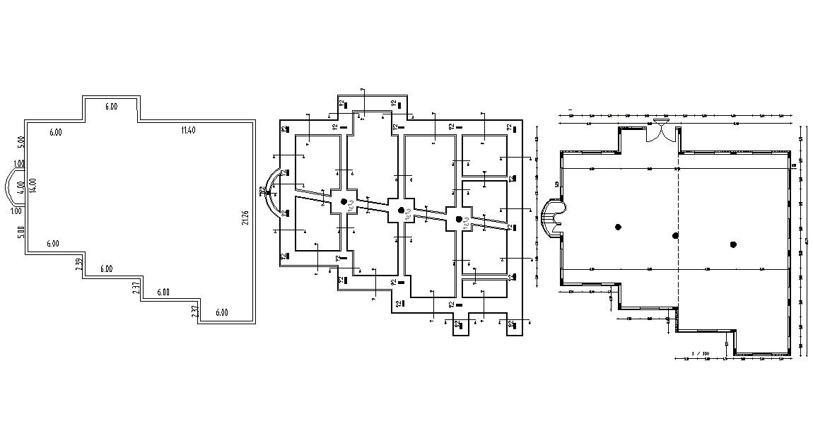
2d CAD drawing of residence house foundation plan with excavation plan and dimension detail. download free DWG file of bungalow floor plan drawing and use this idea for CAD presentation.
Uploaded by:

