2D Office Floor Plan Drawing AutoCAD File

2D Office Floor Plan Drawing AutoCAD File
Profile

Uploaded by:

Komal

Description
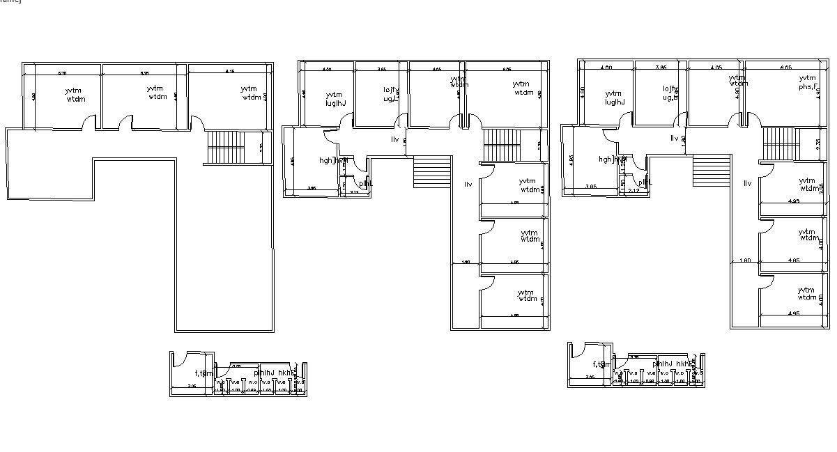
this is 3 storey commercial office floor plan CAD drawing includes dimension detail and public toilet plan. download free DWG file of commercial office plan design DWG file.
Profile

Uploaded by:

Komal

find Latest

Related Files

WhatsApp Chat