30' X 75' Apartment Electrical And Plumbing Plan DWG File
Description
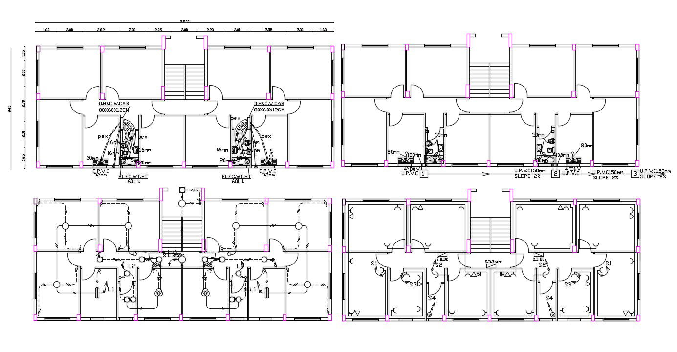
30 by 75 feet architecture 2 BHK apartment house floor plan CAD drawing includes plumbing plan and electrical wiring layout plan that shows proper installation way with dimension detail. download 2250 square feet apartment plan drawing DWG file.
Uploaded by:

