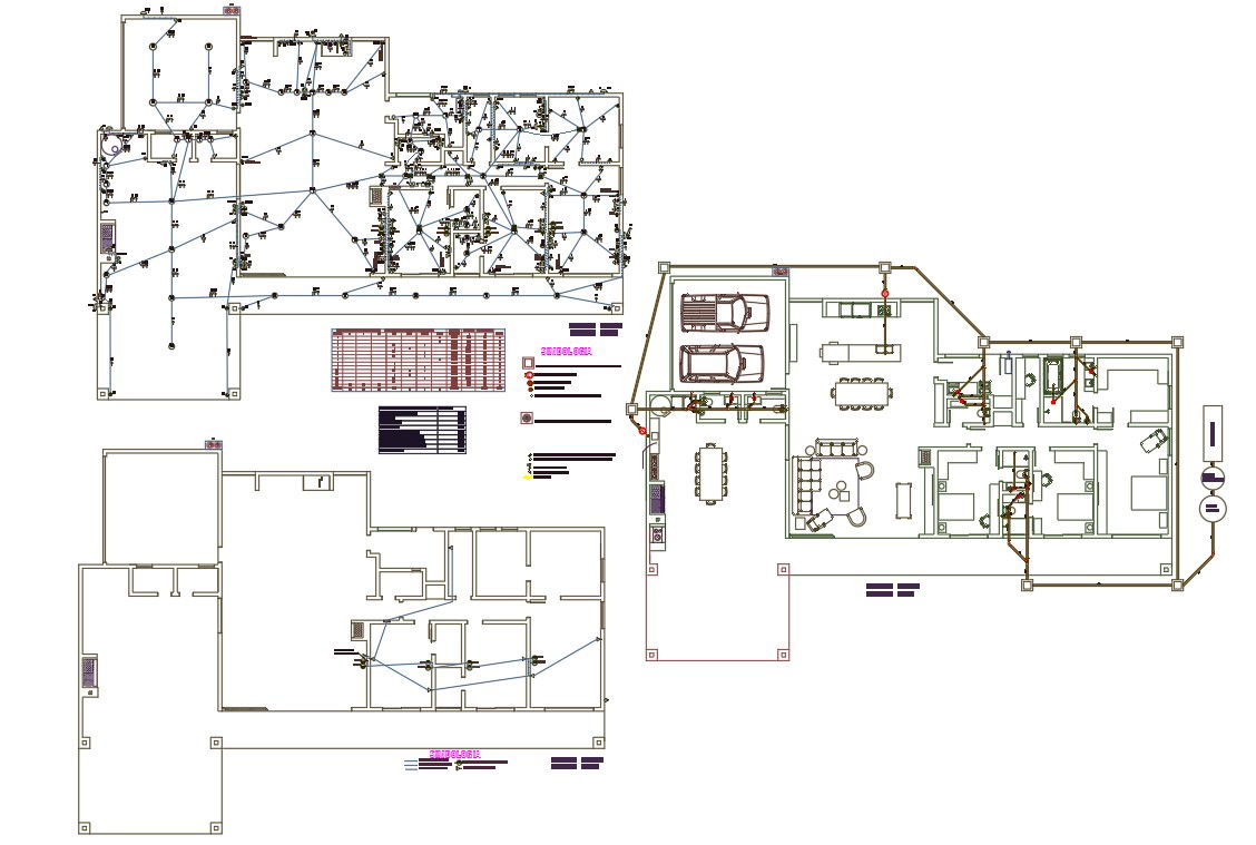
3 BHK House Electrical And Plumbing Plan DWG File
Description
AutoCAD drawing of residence 3 bedrooms house electrical wiring layout plan and plumbing plan design that shows covering wastewater through drainpipe by gravity to join either a public sewer manhole. download house electrical and sewer plumbing plan drawing DWG file.
Uploaded by:

