House Sewer Plumbing Layout Plan CAD Drawing
Description
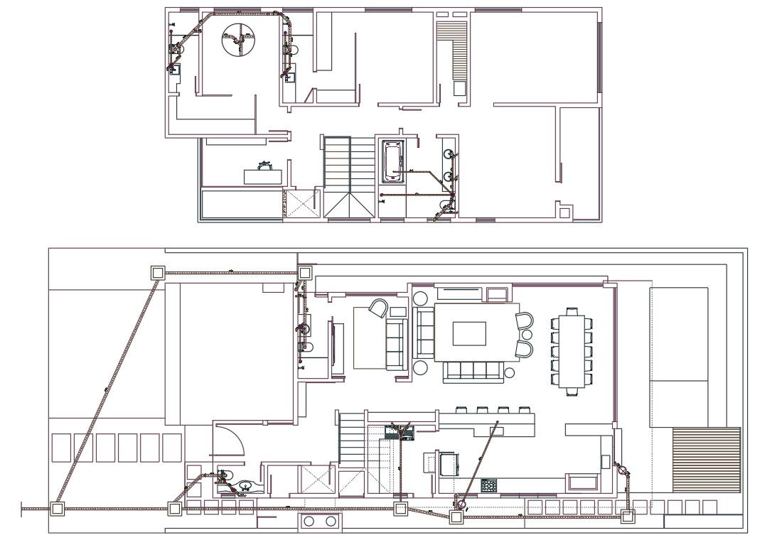
2D House plumbing layout plan of the ground floor and first-floor plan that shows water pipe and wastage drainage line which connected to kitchen and toilet after it goes to a public manhole through the chamber box. download house plumbing plan design DWG file.
Uploaded by:

