4 BHK House Furniture Layout Plan AutoCAD File
Description
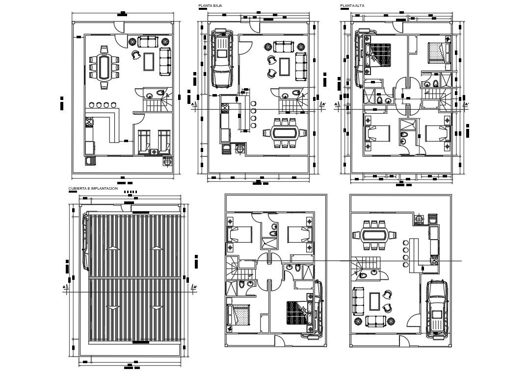
the architecture layout plan has been designing in AutoCAD software, a drawing showing layout plan includes ground floor and first-floor plan with furniture layout plan design that shows 4 bedrooms, large open kitchen with views to the dining area and drawing. download roof house plan design DWG file.
Uploaded by:

