4 BHK Apartment And Beam Plan Drawing AutoCAD File
Description
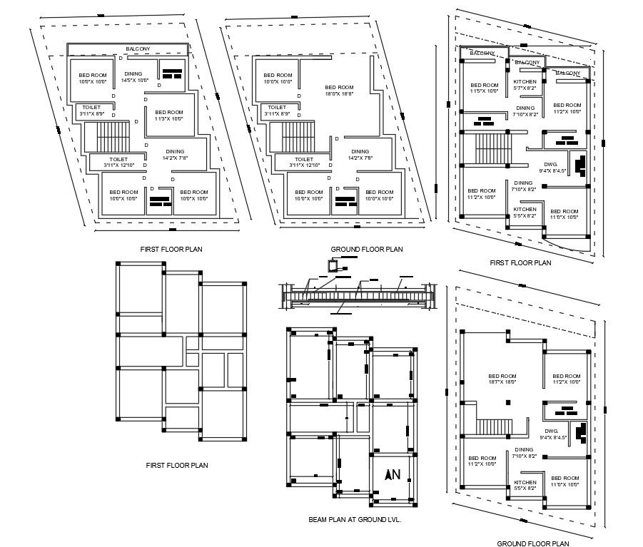
the architecture layout plan has been designing in AutoCAD software, the apartment layout plan design that shows 4 BHK and 3 BHK house plan with all dimension detail and description. download apartment floor plan drawing DWG file.
Uploaded by:

