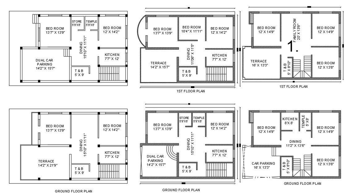
2 BHK And 3 BHK House Plan With Car Parking AutoCAD File
Description
AutoCAD drawing of residence house ground floor and first-floor plan that shows 2 BHK and 3 BHK layout plan design with all dimension detail in feet format also has column plan design. download residence car parking porch house plan DWG file.
Uploaded by:

