House Ground Floor And First Floor Plan With Elevation Design
Description
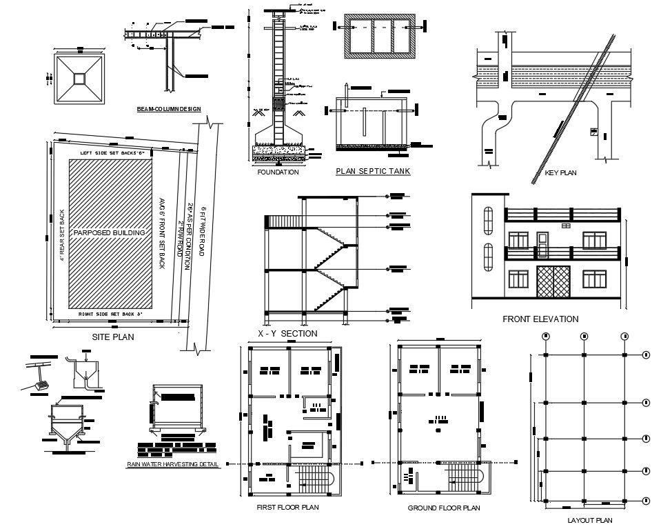
The Residence house ground floor plan and first-floor plan design with site plot purpose plan, foundation detail, column design, key plan and front elevation design. download 2 storey house plan with column layout plan design DWG file.
Uploaded by:

