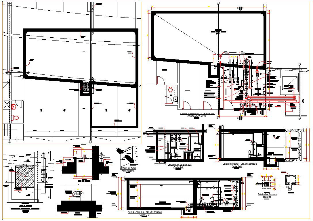
Machinery detail
Description
Suction Box, Control Panel Main Pump A.C.I, Intake Tank Cover, etc detail.
File Type:
DWG
File Size:
388 KB
Category::
Mechanical and Machinery
Sub Category::
Factory Machinery
type:
Gold

Uploaded by:
Fernando
Zapata
File Type:
File Size:
Category::
Sub Category::
type:

Uploaded by:
Zapata