2 Storey House Plan With Front Elevation Design DWG File
Description
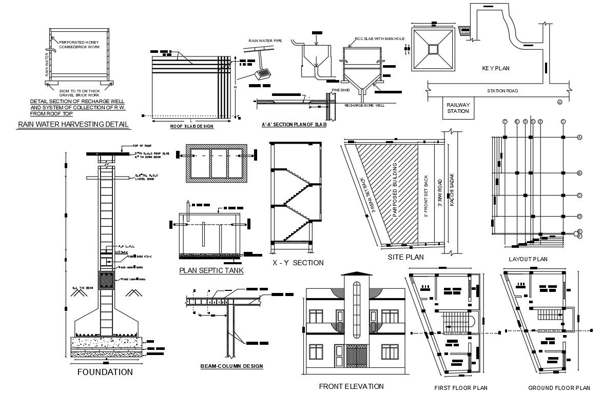
The house ground floor plan and first-floor plan with front elevation design. also has a column layout plan, beam-column design, foundation and roof slab design with key plan drawing. download 2 storey house project design DWG file.
Uploaded by:

