House Layout And Site Purpose Plan Drawing DWG file
Description
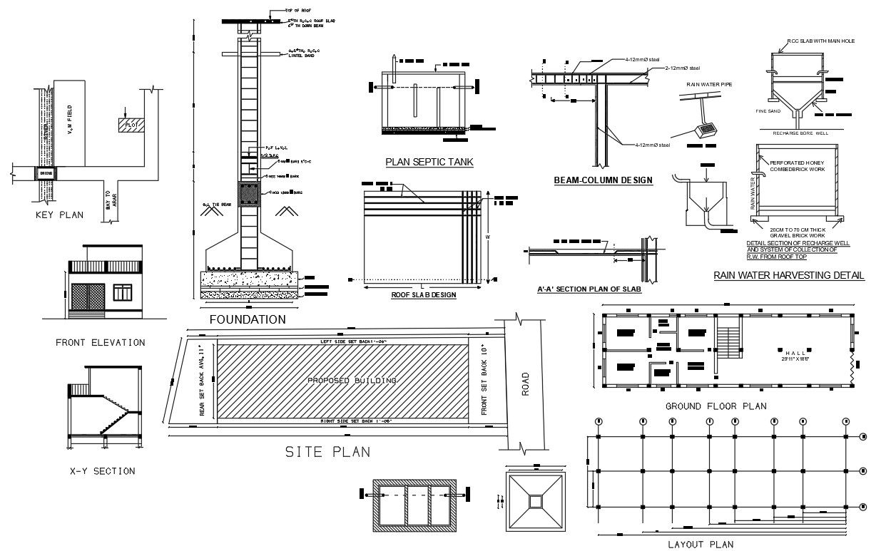
2d CAD drawing of construction site house working plan design that shows site purpose plan, foundation, column beam design, rainwater harvesting detail with the septic tank. download single storey house plan AutoCAD file.
Uploaded by:

