2 BHK Apartment Plan And Front Elevation Design CAD File
Description
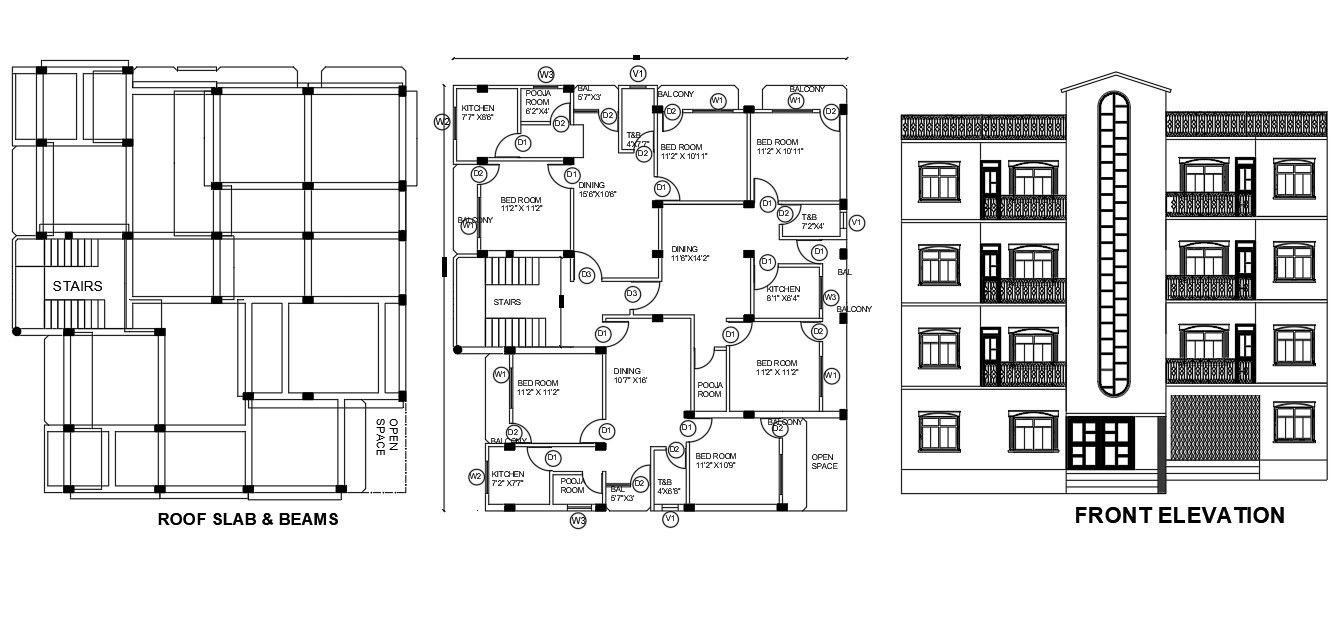
AutoCAD drawing of 2 BHK apartment floor plan design that shows 3 unit house plan with dimension detail also has roof slab and column beam design. download apartment house plan with front elevation design.
Uploaded by:
