2 BHK Family House House Project AutoCAD File
Description
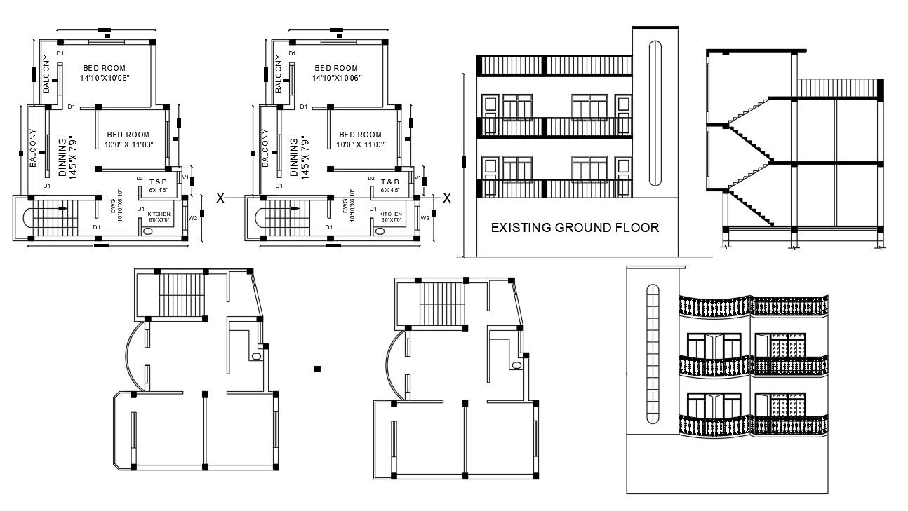
The residence house project ground floor and first-floor plan design that shows 14'10" X 10'06" bedrooms and 10' X 11'03" bedrooms design with kitchen, dining area, toilet and balcony view design. download house plan with front elevation design DWG file.
Uploaded by:

