45' X 60' Apartment Plan With Car parking CAD Drawing
Description
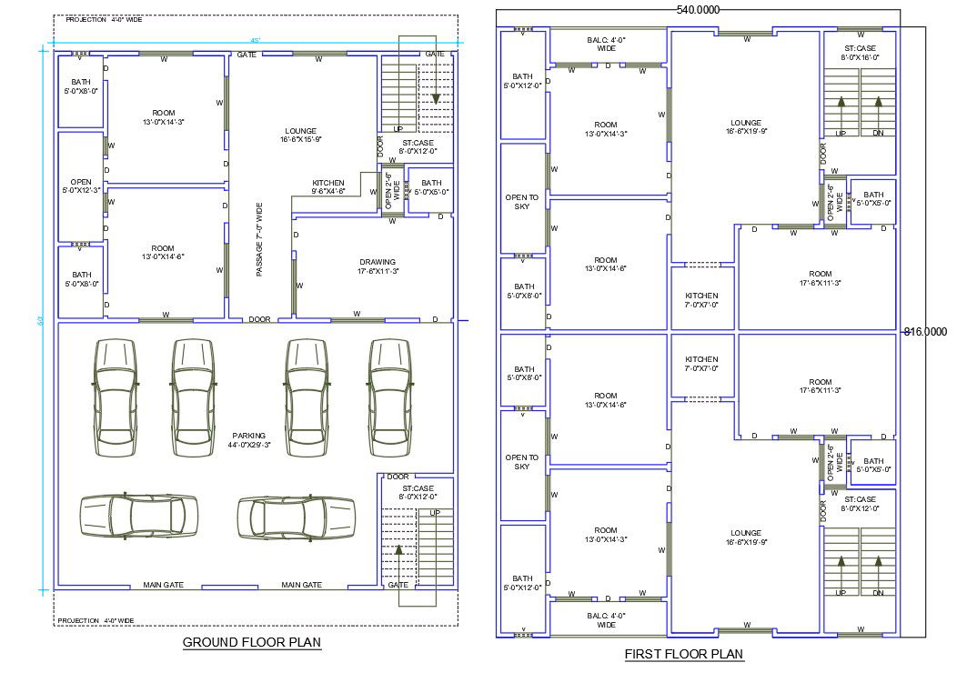
45 X 60 feet plot size of 2 BHK and 3 BHK apartment house plan CAD drawing shows ground floor and first floor plan which includes 13' X 14' bedrooms with attached bathrooms. download apartment plan with 44 X 29 feet wide parking space design DWG file.
Uploaded by:

