Commercial Shop With Apartment House Plan Drawing CAD File
Description
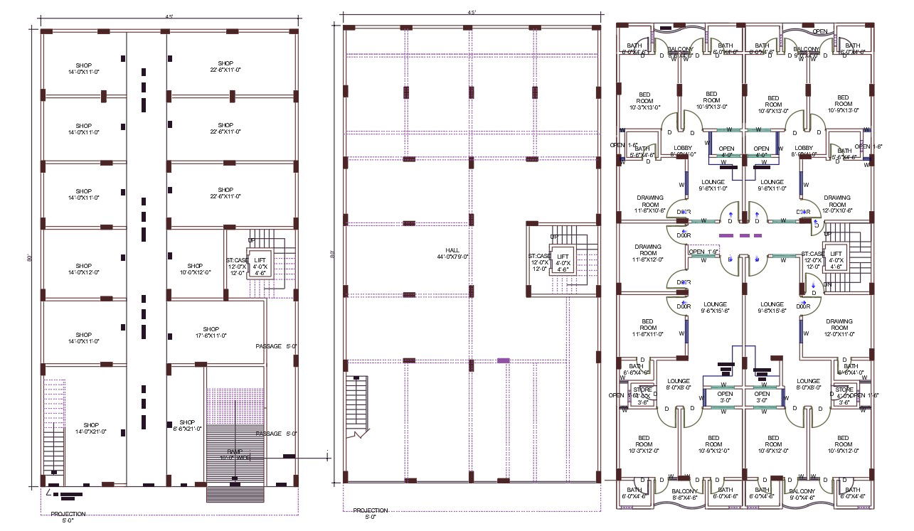
45' X 80' plot size of shops with apartment layout plan CAD drawing that shows shop on ground floor and luxurious 2 BHK and 3 BHK house typical plan on first floor with all measurement and dimension detail which is in feet format. download 3600 square feet apartment plan drawing DWG file.
Uploaded by:

