Residence Electrical Wiring Layout Plan Design ZDWg
Description
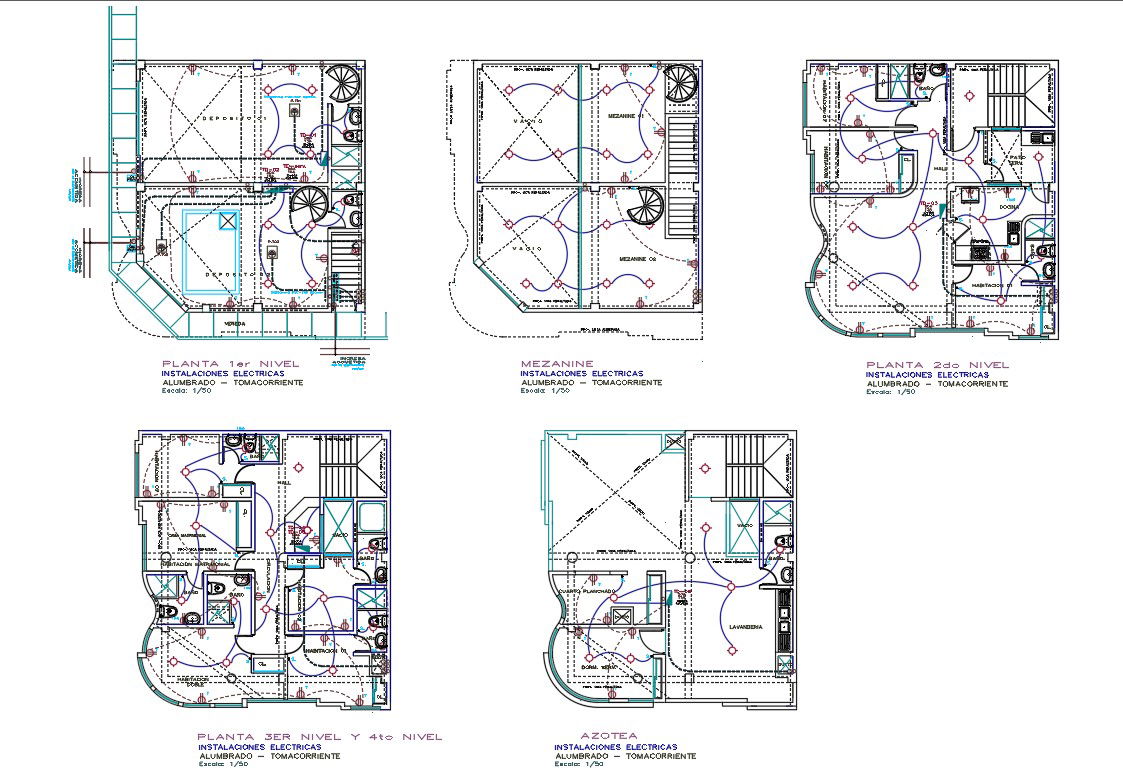
2D CAD drawing of architecture residence house 4 storey electrical layout plan design that shows ceiling light point, wiring detail, switches and socket design. download house electrical layout plan design and get guidance of installation.
Uploaded by:
