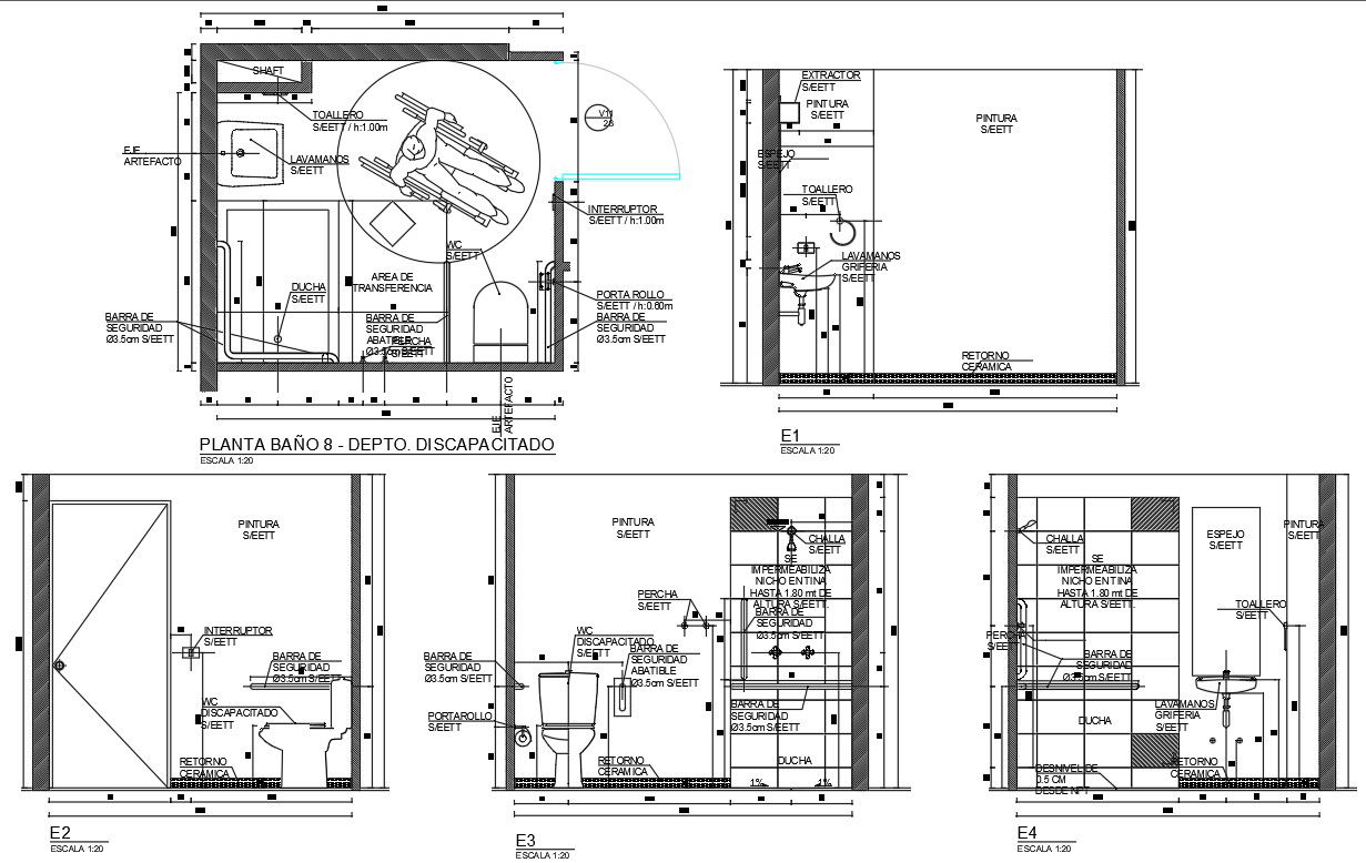
Toilet for Handicapped Persons Elevation and Section Design DWG File
Description
This DWG File provides elevation and section designs specially for toilets used by handicapped persons. Included are top, front, and side views along with detailed 2D models of sanitary wares: a western toilet, washbasin, shower, and associated pipe connections. The design emphasizes accessibility by ensuring fixtures are correctly placed, space allowances are sufficient for wheelchair use, and pipe layout is clearly shown for installation. Ideal for architects, engineers, builders, and facility designers who need to plan disability-friendly toilets that comply with safety and usability standards.

Uploaded by:
AS
SETHUPATHI

