Water for Irrigation Room
Description
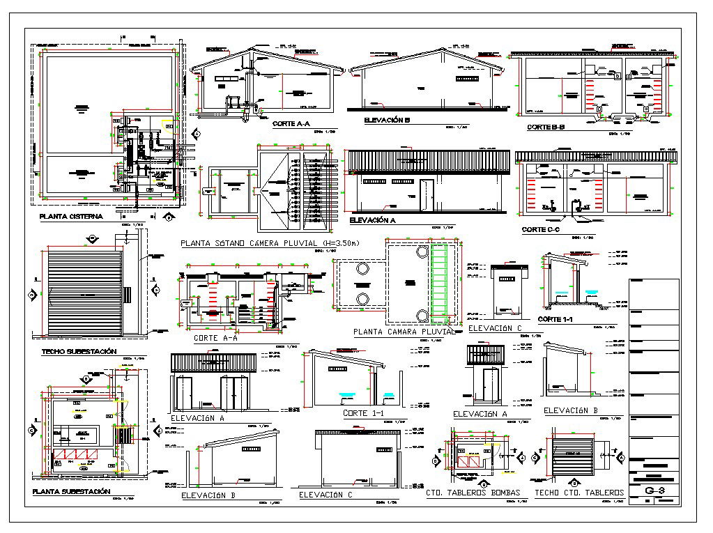
This water for irrigation room foundation detail.structure detail, Elevation, section detail.
File Type:
DWG
File Size:
1.8 MB
Category::
Mechanical and Machinery
Sub Category::
Factory Machinery
type:
Gold

Uploaded by:
Fernando
Zapata

