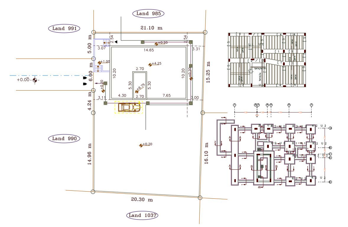
10 X 15 Meter House Construction Plan And Site Plot Design
Description
10 X 15 meter plot size of construction house working plan design that shows column footing foundation plan, excavation plan, center line plan, slab bar structure design and site plot plan with gutter line chamber box detail. download 150 square meter house design DWG file.
Uploaded by:

