12Mtr X 16Mtr House with Mater Plan Design DWG File
Description
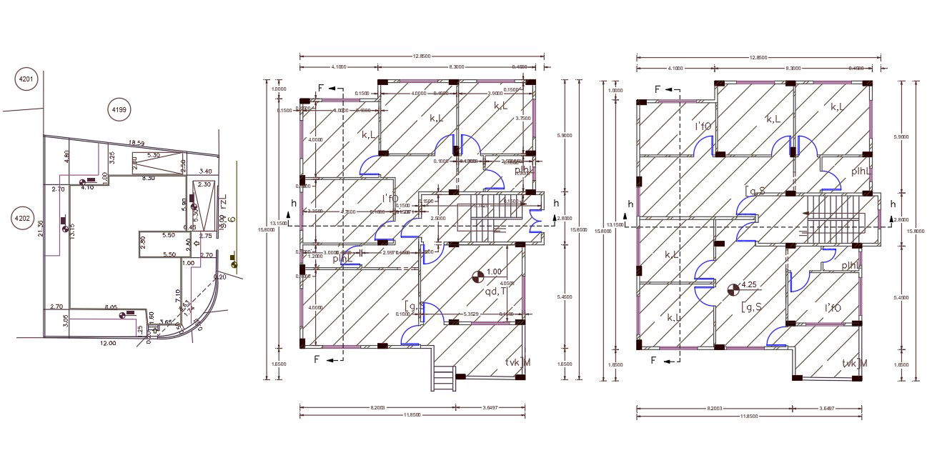
12 X 16 meter plot size of 2 BHK and 3 BHK house apartment plan with column layout and number of door marking detail. download apartment master plan with 2 big car parking and compound wall design DWG file.
Uploaded by:

