20 X 10 Meter House And Site Plot Plan AutoCAD File
Description
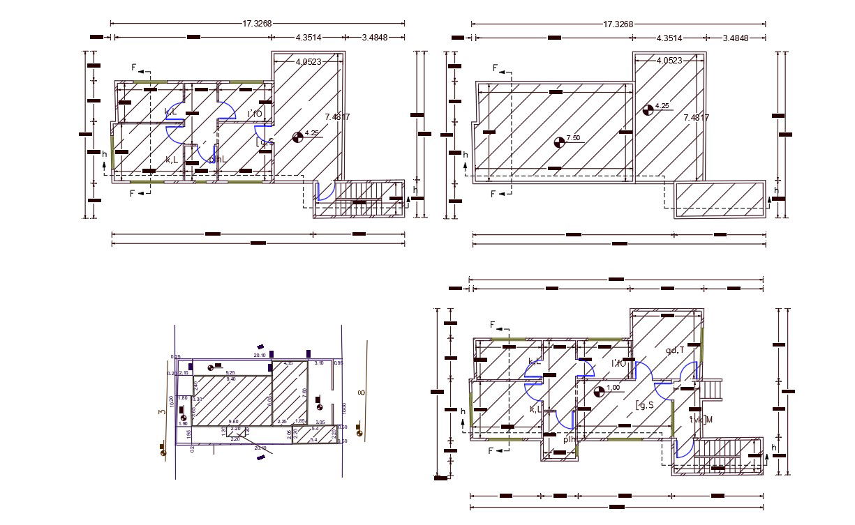
20 X 10 meter plot size of architecture house ground floor and first floor plan with dimension detail that shows 2 bedrooms, kitchen, drawing room, living area and staircase detail. download 2 BHK house plan and site plot land survey detail DWG file.
Uploaded by:

