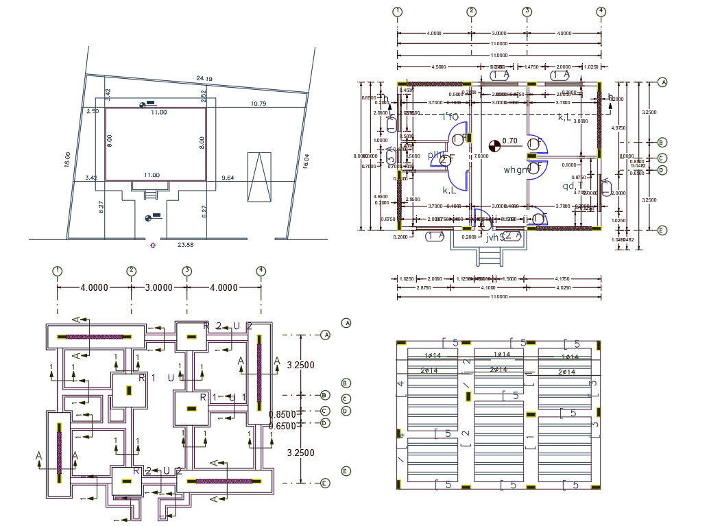
2 BHK House Plan With Center Line Working Drawing DWG File
Description
8 X 11 meter plot size of house ground floor plan with center line plan construction working drawing which includes column footing foundation plan, excavation plan and slab bar structure design. download 2 bedroom house plan and the ground floor has a parking space to accommodate 1 big car and compound wall design.
Uploaded by:

