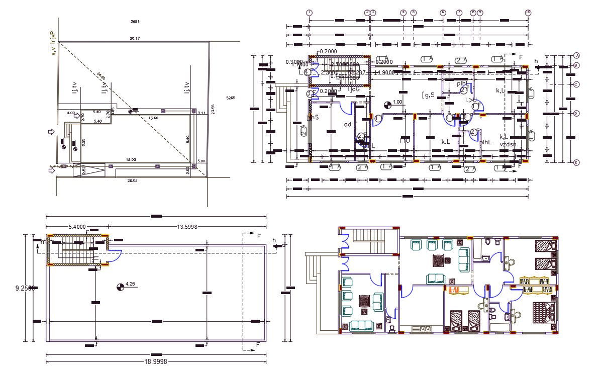
9 X 19 Meter House Center Line Plan With Furniture Design
Description
9mtr X 19 mtr residence house single storey floor plan with center line plan design that shows 3 bedrooms, kitchen, drawing room near to toilet for guest and living area. also has column layout and furniture design. download 3 BHK house plan with door window marking detail DWG file.
Uploaded by:

