3 BHK Single Storey House Electrical And Plumbing Plan
Description
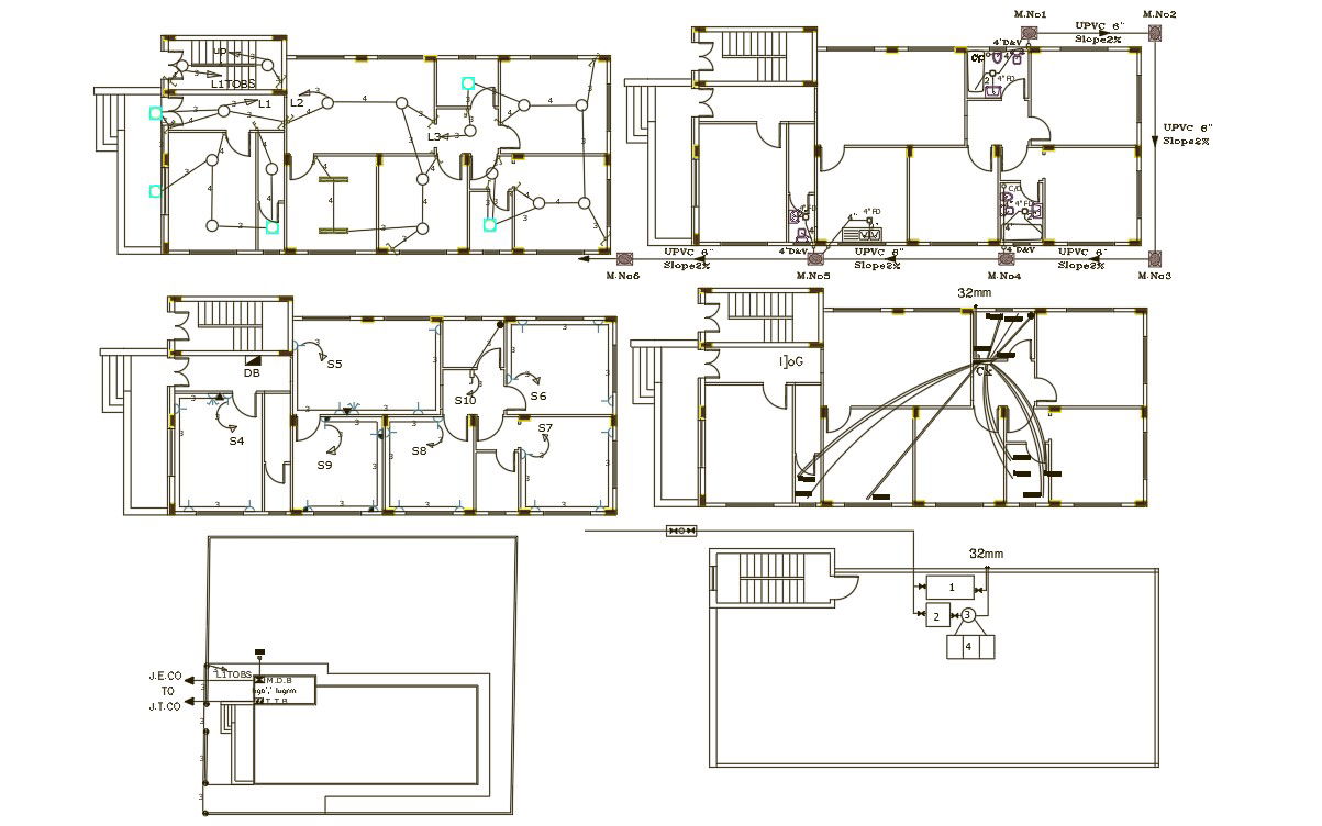
9 X 19 meter plot size of residence house ground floor plan with electrical and plumbing layout plan design that shows ceiling light point, switches, and pipe line installation with gutter line which is connected to chamber box.
Uploaded by:

