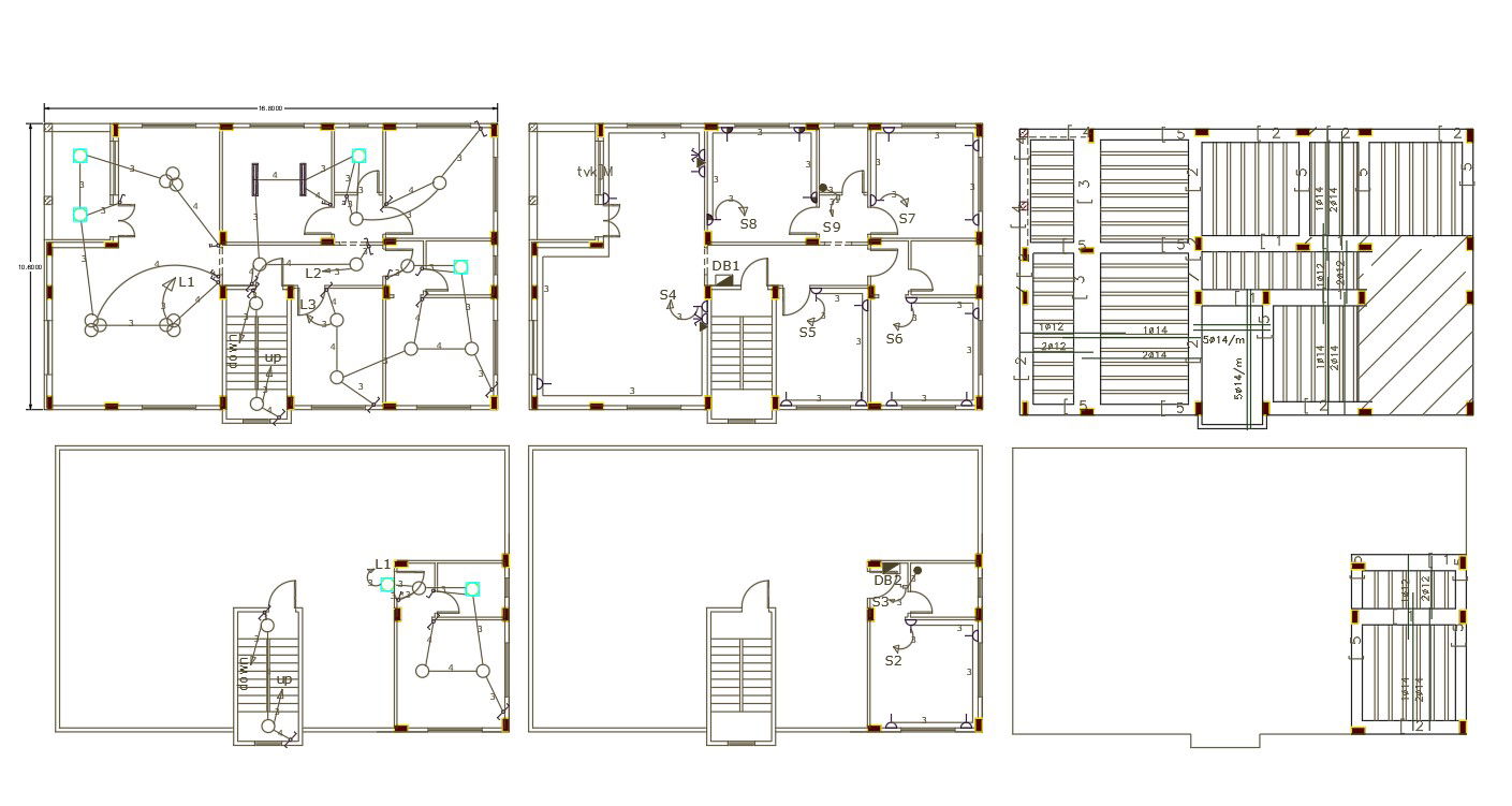
3 BHK House Electrical Layout Plan Slab Bar Design
Description
3 BHK residence house electrical wiring layout plan design that shows ceiling light point, wiring detail, switches and socket design. download house electrical layout plan design and get guidance of how to installation wiring.
Uploaded by:

