Kitchen Platform Plan And Sectional Elevation Design
Description
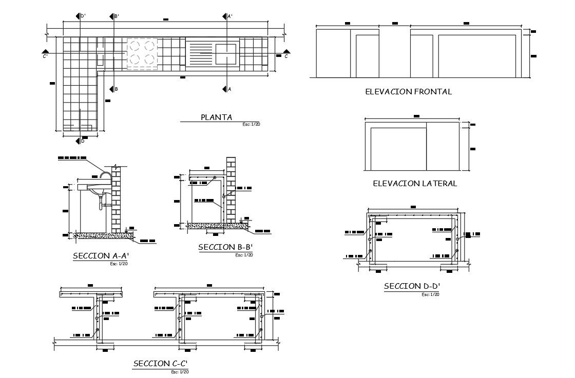
AutoCAD drawing of platform floor plan, section drawing and elevation design that shows 4 burner gas, sink, and under platform cupboard with dimension detail. download DWG file of kitchen platform plan design.
Uploaded by:

