Architecture Interior Office Plan Design AutoCAD File
Description
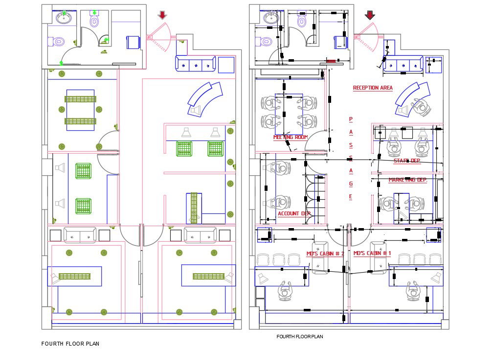
The architecture interior design of office furniture layout and false ceiling light layout plan design which includes reception area, toilet, meeting room, staff area with working desk, account department, marketing department, manager cabin and director cabin. download office interior design plan DWG file.
File Type:
DWG
File Size:
109 KB
Category::
Interior Design
Sub Category::
Modern Office Interior Design
type:
Gold
Uploaded by:

