Office Interior Design With measurement Detail CAD Drawing
Description
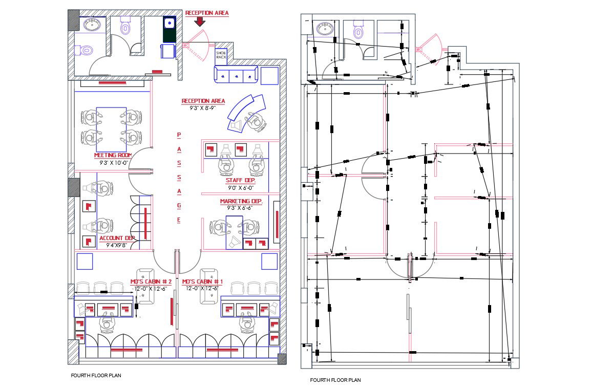
the forth floor level office interior design layout with measurement in feet format and description detail in CAD drawing which includes reception area, toilet, meeting room, staff area with working desk, account department, marketing department, manager cabin and director cabin. download office plan with dimension detail DWG file.
File Type:
DWG
File Size:
106 KB
Category::
Interior Design
Sub Category::
Corporate Office Interior
type:
Gold
Uploaded by:

