Column Beam Construction Drawing For Cluster House Plan
Description
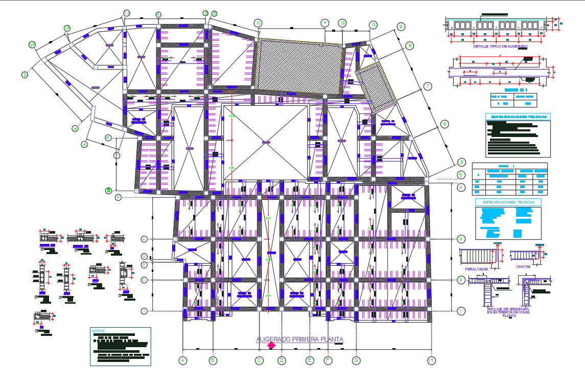
This drawing represents the RCC construction column beam layout plan design with dimensions, position and section of plinth beam and the details of reinforcement in plinth beam. download construction with center line plan design DWG file.
Uploaded by:

