Architecture Interior House Plan And Master Plan Design DWG File
Description
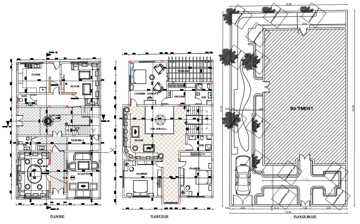
15 X 25 meter plot size of house ground floor and first-floor plan have 3 bedrooms, family room, drawing room, modular kitchen, hall and all dimension detail.also has flooring and furniture design. The master has a parking space to accommodate 1 big car and compound wall design.. Download DWG file and collection of fabulous ideas that would serve as a good source of inspiration for new project drawing.
Uploaded by:

