Apartment Plumbing And Sanitary Ware Fixing Layout Plan DWG File
Description
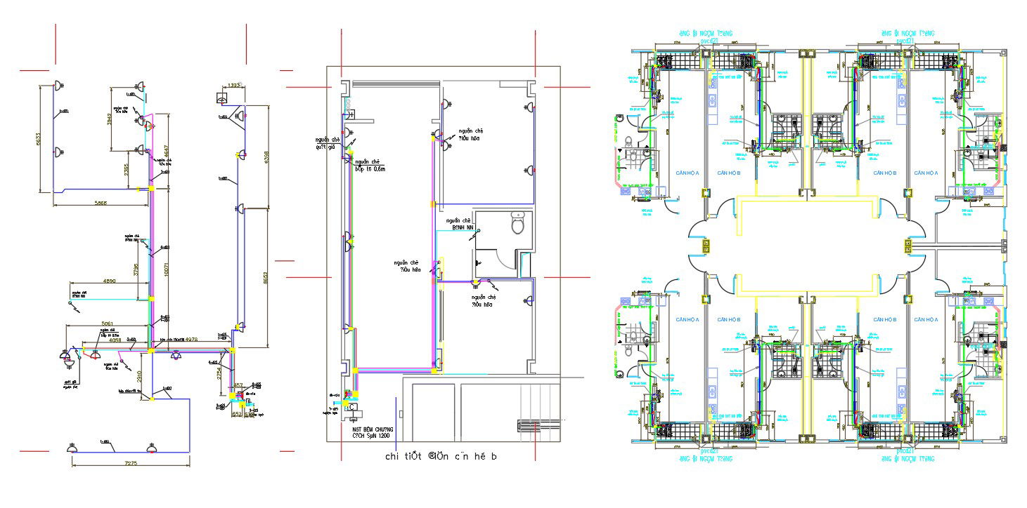
The apartment cluster layout plan design with plumbing and sanitary ware installation fixing detail. also its has connected kitchen to toilet after it goes to a public manhole through the chamber box. download apartment pipe line installation detail AutoCAD file.
Uploaded by:

