Industrial Plant Sectional Elevation Design AutoCAD File
Description
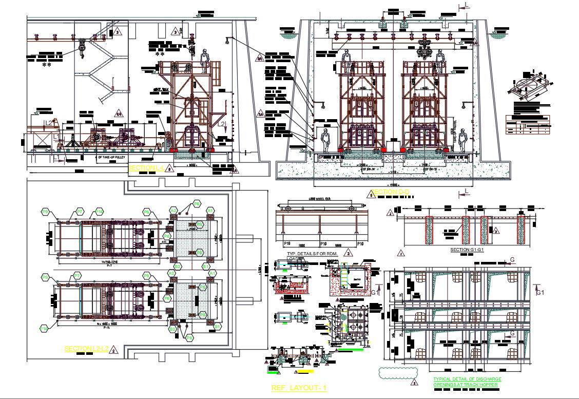
The industrial plant with production machinery sectional elevation design that shows the large extent simplify the equipment configuration of the entire system and has high loading electrical system and remote monitoring system. download production industrial plant sectional elevation design DWG file.
Uploaded by:
