Factory Machinery Plant Section Drawing DWG File
Description
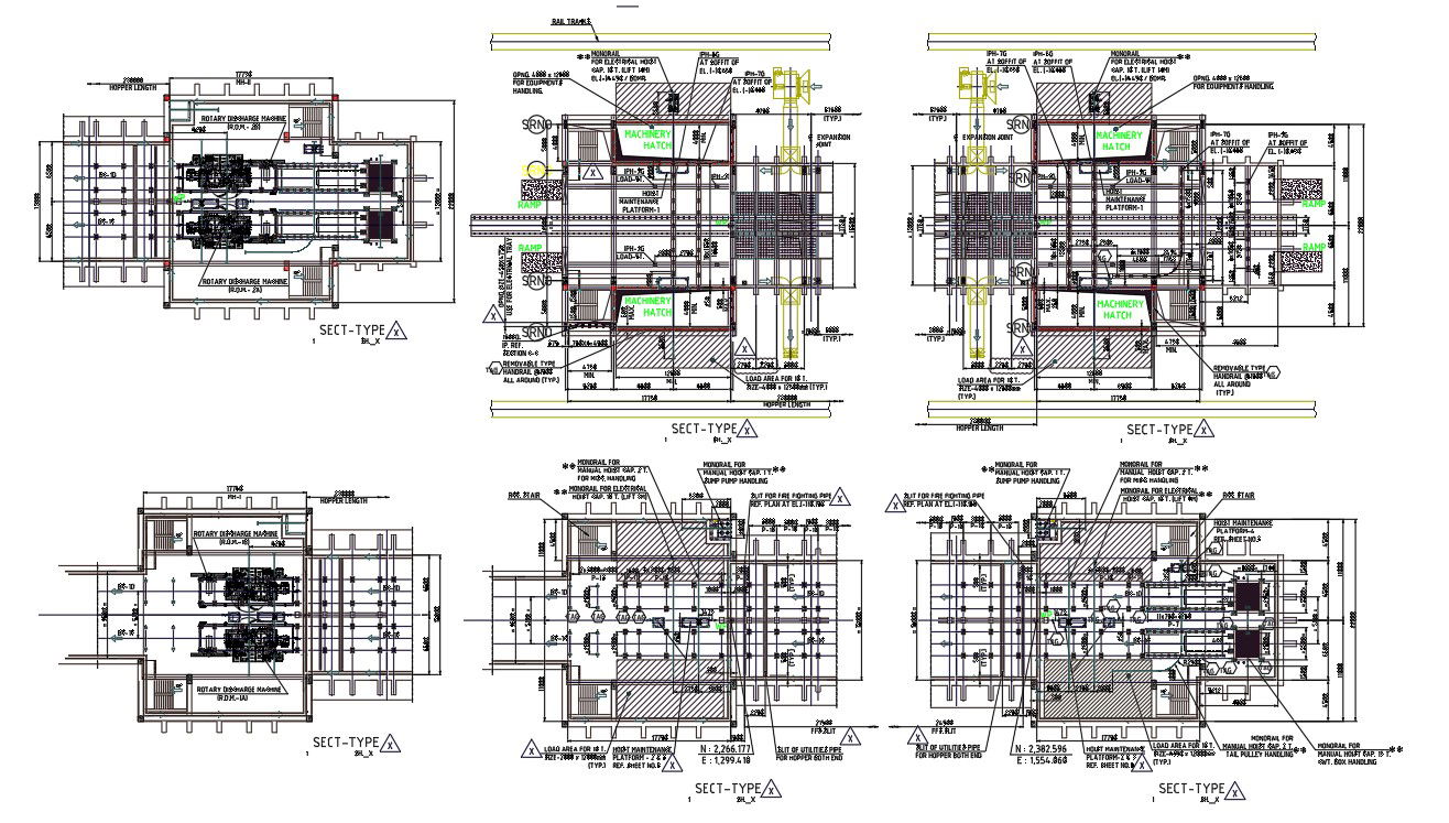
The factory machinery plant section drawing with description detail that shows quick and easy installation with adjustment plant, high loading electrical system and convenient engineering. its a RCC and steel structure construction. download factory plant design AutoCAD file.
Uploaded by:

