Petrol Pump Station Layout Plan Free CAD File
Description
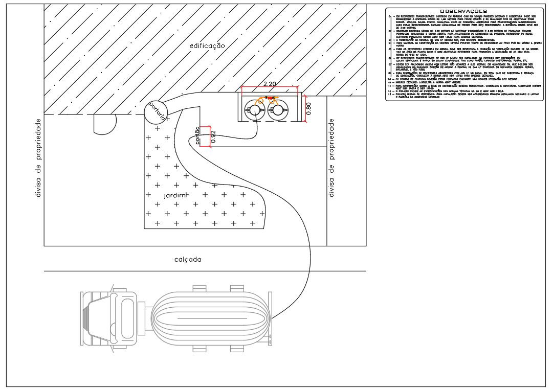
The petrol pump station layout plan design CAD drawing that shows fuel pump and taker also has observe minimum distance of 3.00 meters of fuel materials and 6.00 meters of toxic, dangerous, flammable products and open flame. to storage oxygen. download free petrol pump station CAD file.
Uploaded by:
