Fuel And Gas Pump Station With Tank Design DWG File
Description
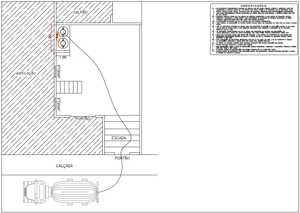
2d CAD drawing of duel and gas pump station with tank design which consist transportable containers contained in shelters with at least side walls and coverage, a minimum distance of 1.50 meters. download free DWG file of fuel and gas station design.
Uploaded by:
