House Construction Plan And Girder Plan AutoCAD File
Description
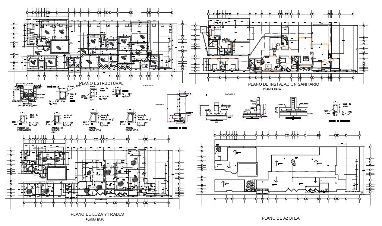
The residence house construction working center line plan design that shows structural plan, tile and girder plan, roof plan, sanitary installation plan with RCC column beam design. download house girder plan design with dimension detail DWG file.
Uploaded by:

