Kitchen Interior Elevation Design AutoCAD File
Description
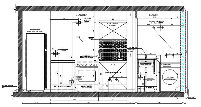
The modular kitchen interior front elevation design that shows microwave oven, sink, dish washer, 4 burner gas stove, refrigerator, and cupboard under platform. download modular kitchen interior design front view elevation drawing DWG file.
Uploaded by:
