AutoCAD House Floor Plan And Terrace Design DWG File
Description
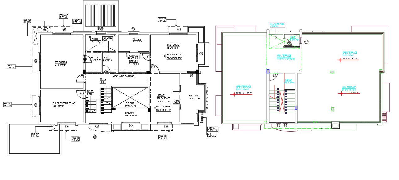
The architecture house floor plan and terrace plan design that shows bedrooms, children room, study room, hall, and kitchen with description detail and and measurement. download house floor plan design with column detail DWG file.
Uploaded by:

