Explore Villa Project Architecture Section Drawing in DWG File
Description
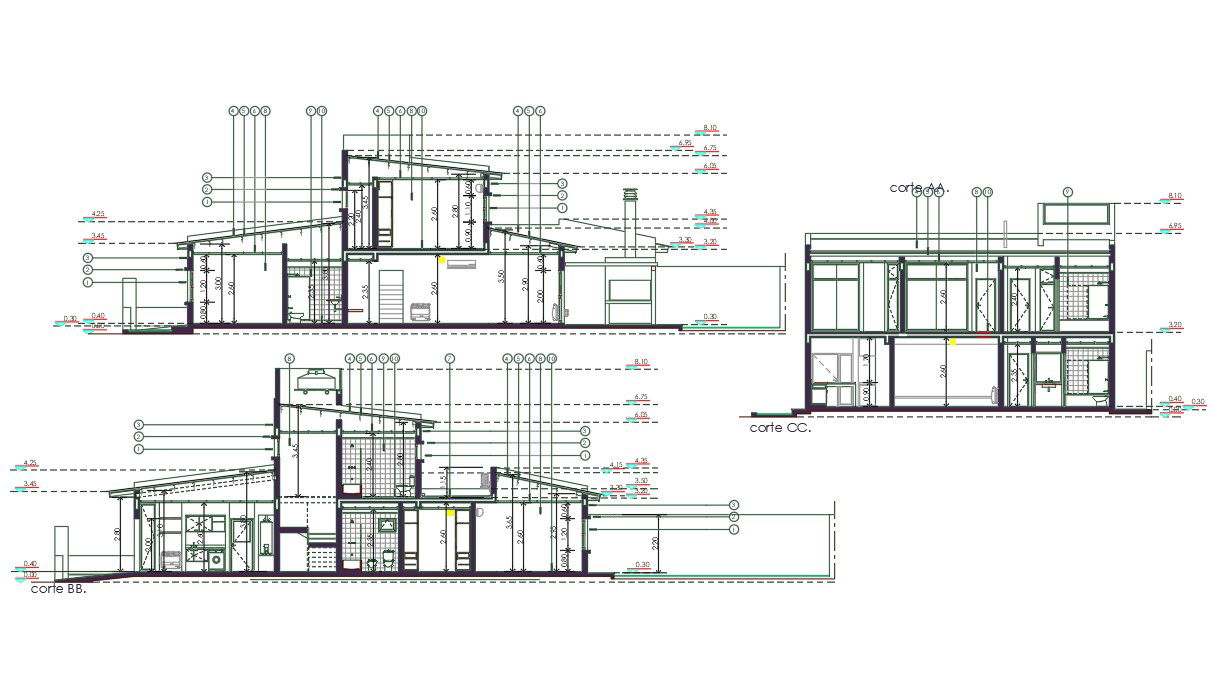
The residence modern villa project building section drawing which is view from number of different angle design that shows center line with dimension detail. download 2 storey villa building section structure design AutoCAD file.
Uploaded by:

