Factory Plant With Center Line Plan Design DWG File
Description
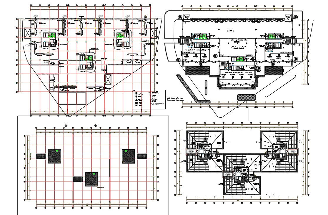
2d CAD drawing of factory plant with center line detail that shows electrical power results in the voting section (design agreement). download factory industrial plan drawing AutoCAD file.
Uploaded by:

