Food And Drinking Counter Design AutoCAD File
Description
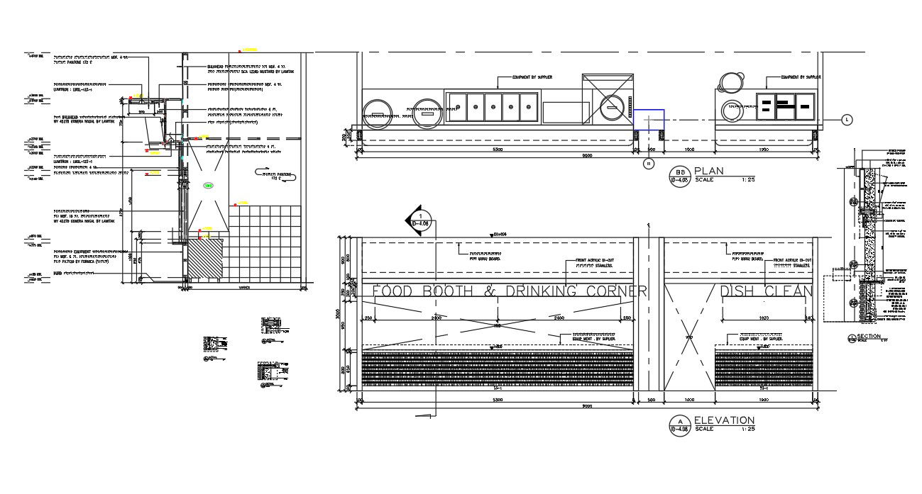
2d CAD drawing of food booth, drinking counter and dish cleaner that shows plan, section and elevation design which consist dashed line showing installation location. also has all dimension and description detail. download food counter furniture design DWG file.
Uploaded by:

