1500 Square Feet Porch House Plans Drawing AutoCAD File
Description
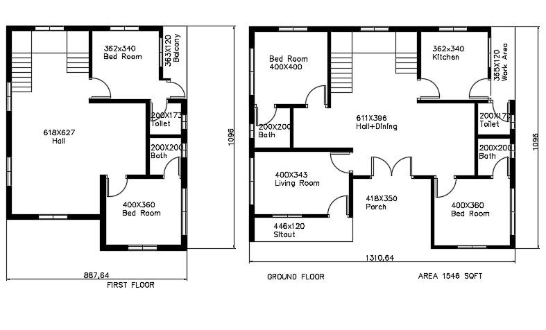
The architecture house ground floor and first floor plan CAD drawing that includes 4 master bedrooms, kitchen, drawing room with dining area, wide hall and open to sky space. download porch house plan with center line dimension detail DWG file
Uploaded by:

