3 BHK House Architecture Layout Plan Drawing DWG File
Description
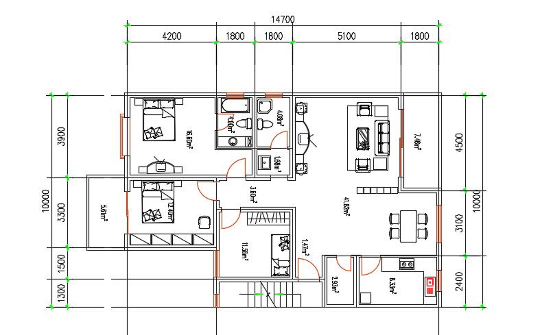
The residence family house ground floor plan with furniture layout drawing which consist 3 bedrooms, 2 bathroom toilet, drawing room, kitchen and dining area also has number of door marking detail. the position foot of the column center line and dimension detail. Download architecture house furniture plan AutoCAD file and collection of fabulous ideas that would serve as a good source of inspiration for new project drawing.
Uploaded by:

