Interior Office Meeting Room Plan And Elevation Drawing DWG File
Description
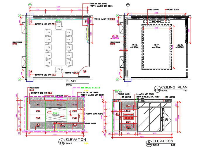
Drawing file showing the details of office meeting room represent art and involves the conceptualization of design ideas based with layout plan, ceiling plan and elevation design with furniture detail. download meeting room CAD drawing DWG file.
File Type:
DWG
File Size:
236 KB
Category::
Interior Design
Sub Category::
Modern Office Interior Design
type:
Gold
Uploaded by:

