LOGIN
HOME
CATEGORIES
UPLOAD FILE
PRICING
HOUSE PLAN
ABOUT US
CONTACT US
Bathroom Design
Home
Categories
Architecture
Bathroom & Toilet Drawing
Bathroom Design
Uploaded by:
Fernando
Zapata
View Profile
View Profile
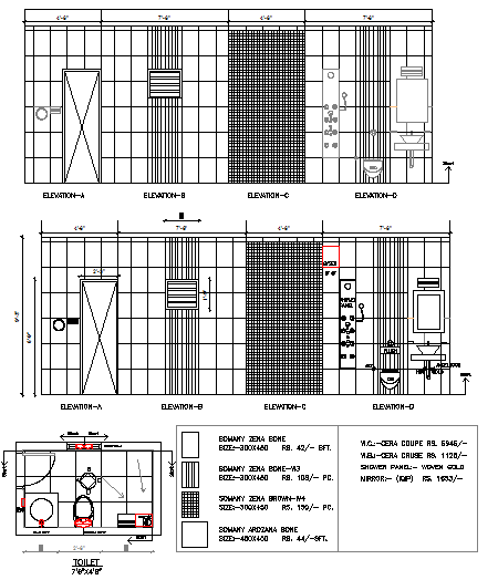
Description
This Drawing design include detail in Wash Basin, W.C, Bath tub, storage etc include & All Side elevation include the detail.
File Type:
DWG
File Size:
93 KB
Category::
Architecture
Sub Category::
Bathroom & Toilet Drawing
type:
Gold
Uploaded by:
Fernando
Zapata
View Profile
Download
Add to libary
find Latest
Related
Files