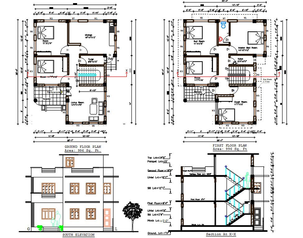
South Facing House Plan with Sectional View in DWG File
Description
Access a 1000 SQFT south-facing house layout and sectional elevation in AutoCAD DWG format. Perfect for residential planning and CAD architectural drafting.
Uploaded by:

