61' X 116' House Plan With Interior Furniture Drawing DWG File
Description
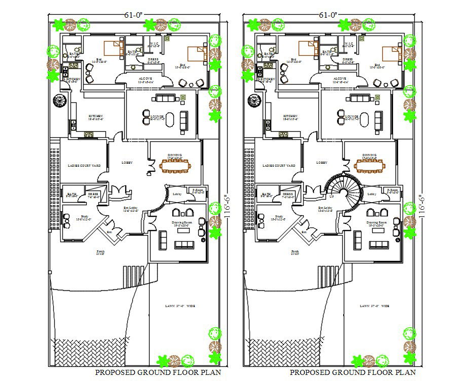
7100 Square feet Architecture house ground floor layout plan AutoCAD drawing having detail of 2 master bedroom with an attached toilet, 24'X17' wide lounge, kitchen, ladies court yard, lobby, dining area, entrance lobby, study room, drawing room, porch area, and 37' wide lawn with landscaping design. some additional detail such as a measurement and description. download purposed ground floor plan house project drawing DWG file.
Uploaded by:
