House plan Ceiling Layout Drawing AutoCAD File
Description
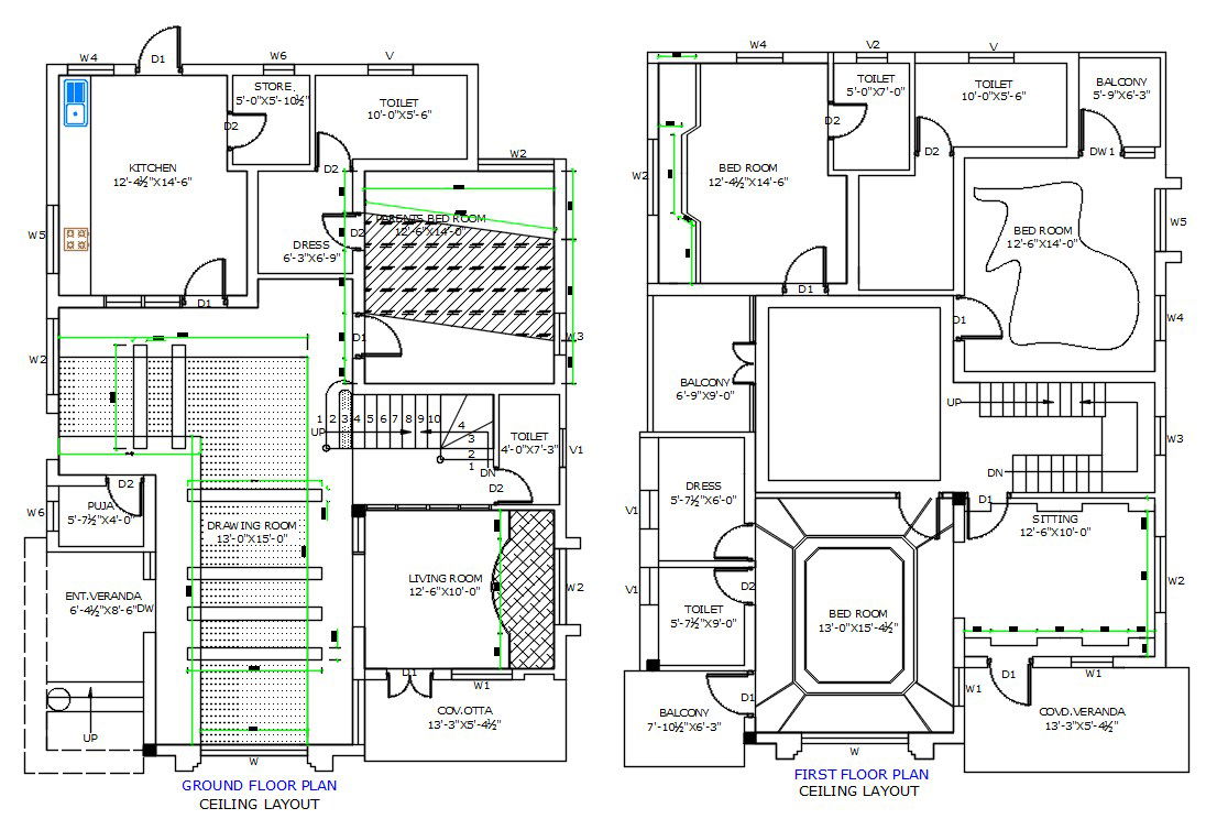
34' X 47' Architecture house ground floor and first floor layout plan with ceiling design AutoCAD drawing which consist 4 bedrooms with an attached toilet, kitchen, dining area, living room, 13'X15' drawing room, and balcony. the additional drawing such as a all measurement and description detail for easy to understand this project. download Modern 2 storey 4 BHK house plan with ceiling pop layout drawing DWG file.
Uploaded by:

