3 BHK Typical Apartment Layout Plan With furniture Drawing DWG File
Description
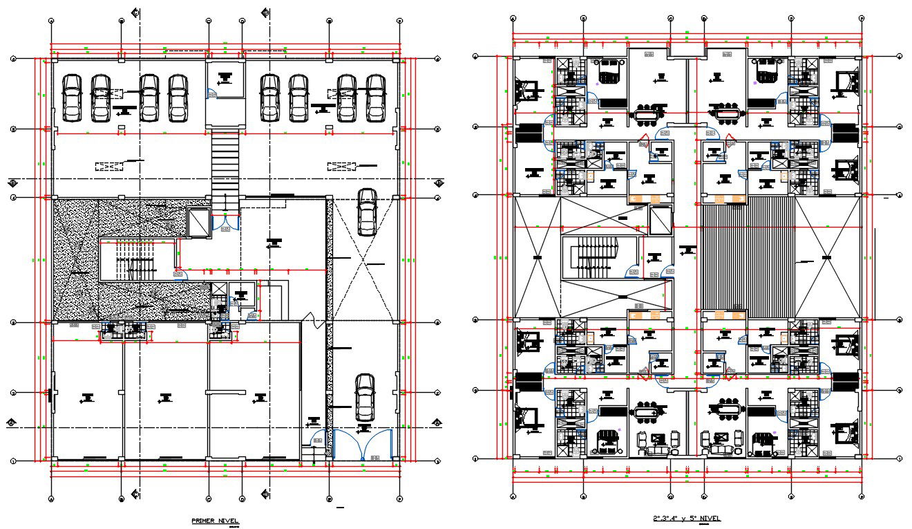
The architecture AutoCAD drawing of apartment project that shows ground floor parking plan and 5 storey typical layout plan with furniture design which consist 3 master bedrooms with an attached toilet, kitchen, wash area, dining area cum drawing room. the additional drawing such as center line plan with measurement dimension detail. download 3 BHK typical apartment layout plan drawing DWG file.
Uploaded by:

